De inchiriat Apartament cu 3 Camere pe Bulevardul Primăverii – Loc de Parcare Inclus Primaverii, Bucuresti


ID: 37174
3 July 2025 37174
Ne pare rău, această proprietate
Nu mai este disponibilă
Vezi oferte similare Închide
Descriere

Locuință elegantă de 90 mp în Primăverii, complet mobilată

Apartament cu 3 Camere pe Bulevardul Primăverii – 90 mp Utili, Mobilat Complet, Loc de Parcare Inclus

2 dormitoare, 2 băi și grup sanitar în zonă exclusivistă

Descoperă un apartament elegant și spațios, situat într-unul dintre cele mai exclusiviste cartiere ale Bucureștiului – Bd. Primăverii. Amplasat la etajul 2 al unui imobil modern (S+P+5), acest apartament complet mobilat se remarcă prin finisaje de calitate, design contemporan și o compartimentare excelentă pentru confortul zilnic.

Compartimentare Funcțională și Design Clasic

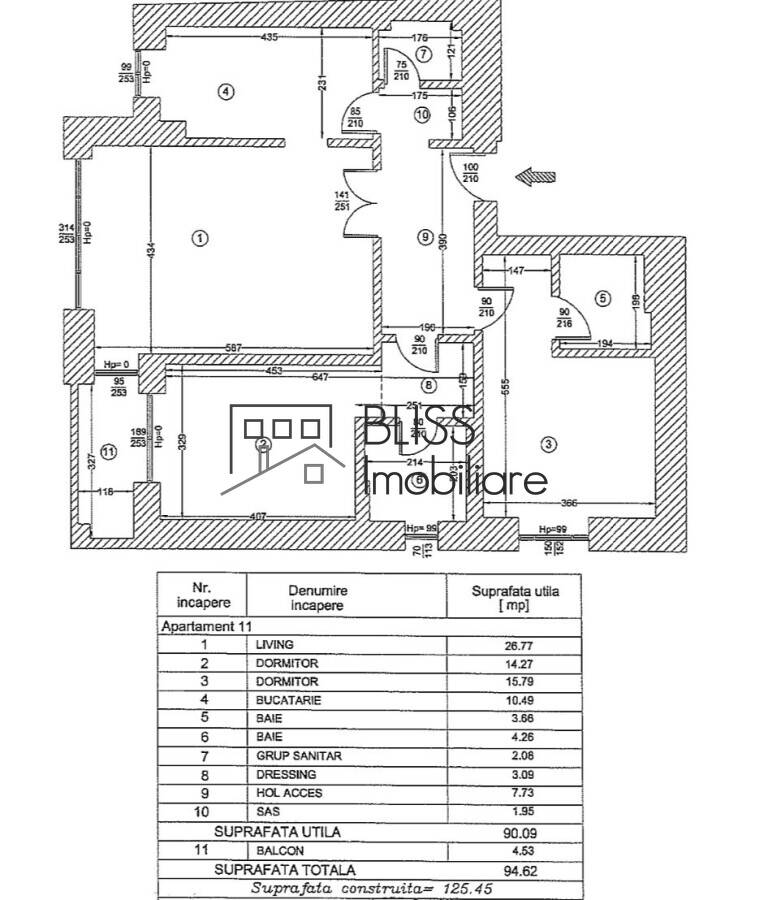
  • Living generos, luminat natural, cu zonă de relaxare și dining
  • Două dormitoare spațioase, complet mobilate
  • Două băi elegante, una cu cadă, una cu duș + grup sanitar suplimentar
  • Bucătărie complet echipată, separată, cu spații de depozitare eficiente
  • Balcon privat, ideal pentru cafeaua de dimineață
  • Holuri și spații de depozitare bine organizate

Dotări și Beneficii

  • Apartament complet mobilat, cu finisaje clasice și mobilier de calitate
  • Aer condiționat, mașină de spălat vase, TV, electrocasnice incluse
  • Suprafață construită de 125 mp
  • Loc de parcare inclus în preț, într-o zonă unde parcarea este o raritate
  • Etaj 2 din 5, într-un imobil păzit și bine întreținut

Localizare Premium – Inima Cartierului Primăveri

Amplasat într-o zonă exclusivistă, apartamentul beneficiază de:

  • Acces rapid către Parcul Herăstrău, Șoseaua Nordului și Kiseleff
  • Proximitate față de restaurante de top, cafenele, școli internaționale, ambasade
  • Transport public facil (metrou Aviatorilor la câteva minute)
  • Zonă verde, liniștită, ideală pentru un stil de viață rafinat
Detalii proprietate
Stare Finalizat
Nr. camere 3
Suprafață utilă 90 m² (29 EUR / m²)
Suprafață construită 125 m² (21 EUR / m²)
Tipul apartamentului Apartament
Compartimentare Decomandate
Confort Confort 1
Nr. dormitoare 2
Nr. bucătării 1
Nr. băi 2
Nr. toalete 1
Tipul clădirii Bloc
An construcție 2014
Dispunere 2S+P+5
Etaj 2
Nr. balcoane 1
Lift Da
Parcare înăuntru 1
Facilități
Bucătărie echipată
Mașină de spălat vase
Este mobilat
Încălzire centrală proprie
Aer condiționat

REALTOR®️ | SRS®️ | PSA®️

BLISS Imobiliare - Imobiliare cu pasiune din 2006!

BLISS Imobiliare este activă în industria imobiliară din România inca din anul 2006. De atunci am dobândit o reputație excelentă gratie standardelor noastre profesionale înalte și a angajamentului nostru față de clienți.

Compania și colegii noștri lucrează îndeaproape cu proprietarii și cu toate persoanele care au o nevoie imobiliara, precum și cu investitorii, avand o abordare completa și integrată pentru a satisfacerea clientilor. În calitate de consultant imobiliar profesionist și consacrat în România, am dobândit de-a lungul timpului cunoștințe extinse despre dezvoltarea imobiliară și despre tendințele pietei din România.

Daca nu ai gasit inca ceea ce iti doresti, te rugam contacteaza-ne si revenim cu oferte personalizate in cel mai scurt timp. Colaboram in cadrul unei retele de profesionisti in imobiliare care te va asista sa gasesti proprietatea pe care ti-o doresti.

BLISS Imobiliare este divizia de Imobiliare din cadrul SC Management Services BLISS SRL

Cod Fiscal RO18268740 | J09/11/09.01.2006

Vă rugăm să citiți Termenii și Condițiile pentru colaborarea cu BLISS Imobiliare și pentru utilizarea acestui site web.
Apartament 3 Camere Primaverii- Parcare Inclusa | Bliss Imobiliare contact Violetta Tudorache
Violetta Tudorache
Sună-ne Similare

Oferte Similare


de inchiriat apartament duplex 4 camere #45259 - BLISS Imobiliare ID: 45259 - 20 February 2026

De inchiriat apartament duplex 4 camere
Duplex Forest Residence Boutique, Iancu Nicolae, Bucuresti / Ilfov

2.700 EUR +TVA / lună
  • Apartament Duplex
  • Etaj 3 / 1S+P+3+M
  • 4 Camere
  • In bloc
  • 174 m²
  • Construit 2017
de inchiriat apartament duplex 3 camere #47438 - BLISS Imobiliare ID: 47438 - 20 February 2026

De inchiriat apartament duplex 3 camere
Lakeview Condominium, Nordului, Bucuresti

2.500 EUR / lună
  • Apartament Duplex
  • Etaj 3 / 1S+DS+HP+5
  • 3 Camere
  • In bloc
  • 192 m²
  • Construit 2004
de inchiriat apartament 3 camere #37178 - BLISS Imobiliare ID: 37178 - 20 February 2026

De inchiriat apartament 3 camere
Primaverii, Bucuresti

2.600 EUR +TVA / lună
  • Apartament
  • Etaj 4 / 2S+P+5
  • 3 Camere
  • In bloc
  • 140 m²
  • Construit 2014