De inchiriat Vilă 680mp cu piscină pe teren de 2000mp Tunari Pipera Nord, Bucuresti / Ilfov


ID: 87537
31 March 2026 87537
Ne pare rău, această proprietate
Nu mai este disponibilă
Vezi oferte similare Închide
Descriere

Grădină întinsă 1.800mp cu 6 locuri de parcare și garaj

Vilă spațioasă de 680 mp construiți in zona Tunari doar 5 minute de la Scoala Americana din Pipera.

Aproape de scoli internaționale, supermarketuri, baruri și restaurante

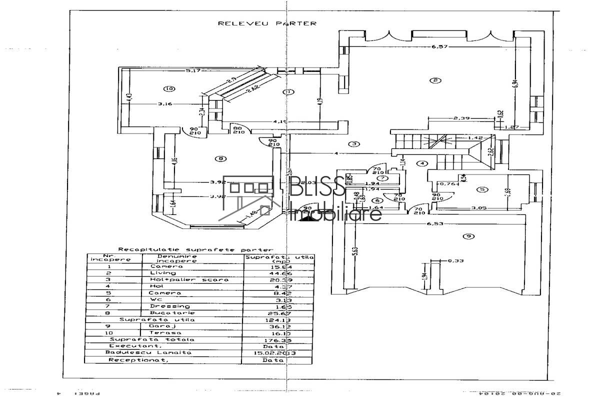
imobilul are 550 mp utili, cu 8 camere, 4 băi, 2 balcoane, o bucătărie închisă (mobilată și utilată, deținând și mașină de spălat vase), pe o suprafață de teren de 2.000 mp.

Amprenta casei este de 200 mp, astfel, grădina capătă o suprafață impresionantă de 1.800 mp, fiind amenajată cu pomi fructiferi, flori și piscină.

Configurația casei este S+P+1+M. La parter se află livingul cu șemineu, cu ieșire pe terasă, zonă de dining, un birou/dormitor, o baie cu duș și garajul.

Curtea din față este amenajată cu multă verdeață, parcare exterioară pentru 6 mașini și oferă acces la garajul dublu.

Această proprietate a fost construită în 2006, fiind situată la cateva minute de școlile internaționale din București, Pipera. De asemenea, se află în apropierea multor supermarketuri, restaurante si baruri.

Construcția este foarte solidă și vă oferă mult confort datorită izolației de calitate.

Cu acces facil la oraș, fiind aproape de Șoseaua de centură a Bucureștiului.

Detalii proprietate
Stare Finalizat
Nr. camere 8
Suprafață utilă 550 m² (5 EUR / m²)
Suprafață construită 680 m² (4 EUR / m²)
Nr. dormitoare 5
Nr. bucătării 1
Nr. băi 4
Tipul clădirii Vila
An construcție 2006
Dispunere 1S+P+1+M
Nr. balcoane 2
Gradină Privată 1.800 m²
Total teren 2.000 m²
Amprenta la sol 200 m²
Parcare înăuntru 2
Parcare afară 6
Facilități
Bucătărie echipată
Mașină de spălat vase
Nemobilat
Încălzire centrală proprie
Aer condiționat
Șemineu
Piscină

REALTOR®️ | SRS®️ | PSA®️

BLISS Imobiliare - Imobiliare cu pasiune din 2006!

BLISS Imobiliare este activă în industria imobiliară din România inca din anul 2006. De atunci am dobândit o reputație excelentă gratie standardelor noastre profesionale înalte și a angajamentului nostru față de clienți.

Compania și colegii noștri lucrează îndeaproape cu proprietarii și cu toate persoanele care au o nevoie imobiliara, precum și cu investitorii, avand o abordare completa și integrată pentru a satisfacerea clientilor. În calitate de consultant imobiliar profesionist și consacrat în România, am dobândit de-a lungul timpului cunoștințe extinse despre dezvoltarea imobiliară și despre tendințele pietei din România.

Daca nu ai gasit inca ceea ce iti doresti, te rugam contacteaza-ne si revenim cu oferte personalizate in cel mai scurt timp. Colaboram in cadrul unei retele de profesionisti in imobiliare care te va asista sa gasesti proprietatea pe care ti-o doresti.

BLISS Imobiliare este divizia de Imobiliare din cadrul SC Management Services BLISS SRL

Cod Fiscal RO18268740 | J09/11/09.01.2006

Vă rugăm să citiți Termenii și Condițiile pentru colaborarea cu BLISS Imobiliare și pentru utilizarea acestui site web.
Vila 680mp Cu Gradina Si Piscina Tunari | Bliss Imobiliare contact Violetta Tudorache
Violetta Tudorache
Sună-ne Similare

Oferte Similare


de inchiriat vila 6 camere #51705 - BLISS Imobiliare ID: 51705 - 11 May 2026

De inchiriat vila 6 camere
Ibiza Golf, Pipera Nord, Bucuresti / Ilfov

3.000 EUR / lună
  • Vila
  • P+1+M
  • 6 Camere
  • 290 m²
  • Renovat 2015
de inchiriat vila 6 camere #35708 - BLISS Imobiliare ID: 35708 - 11 May 2026

De inchiriat vila 6 camere
Ibiza Golf, Pipera Nord, Bucuresti / Ilfov

2.500 EUR +TVA / lună
  • Vila
  • P+1+M
  • 6 Camere
  • 250 m²
  • Construit 2005
de inchiriat vila 6 camere #98367 - BLISS Imobiliare ID: 98367 - 11 May 2026

De inchiriat vila 6 camere
Oxford Gardens Pipera, Pipera, Bucuresti / Ilfov

3.000 EUR / lună
  • Vila
  • P+1+M
  • 6 Camere
  • 280 m²
  • Construit 2015