De inchiriat Vilă de lux cu piscină și grădină Iancu Nicolae, Bucuresti / Ilfov


ID: 7438
3 April 2026 7438
Ne pare rău, această proprietate
Nu mai este disponibilă
Vezi oferte similare Închide
Descriere

Locație exclusivistă și accesibilitate

Vă prezint o vilă impresionantă cu 6 camere, situată în zona Iancu Nicolae, Pipera.
Construită în 2004, această proprietate se remarcă prin spațiile generoase și facilitățile deosebite.

Vila ideală pentru rezidență sau sediu de firmă

Detalii generale:

  • Suprafață utilă: 549 m²
  • Suprafață construită: 644 m²
  • Regim de înălțime: P+1+M
  • Număr camere: 6
  • Număr dormitoare: 4
  • Număr băi: 4
  • Suprafață teren: 2.250 m²
  • Grădină privată: 1925 m²
  • Parcare exterioară: 6 locuri
  • Garaj : 1 loc

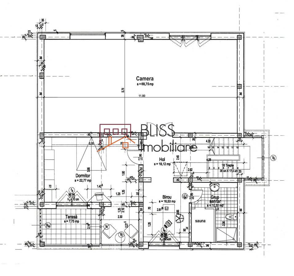
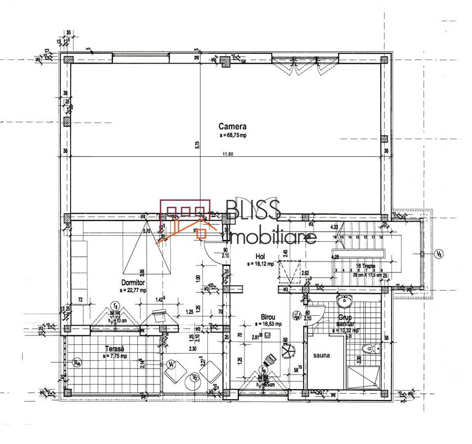
Compartimentare:

  • Parter: Living spațios, bucătărie open-space, garaj, baie și dressing.
  • Etaj: 3 dormitoare, dressing și 2 băi.
  • Mansardă: Saună și un spațiu deschis ce poate fi compartimentat în 2-3 dormitoare suplimentare sau utilizat ca sală de fitness; de asemenea, include o baie cu duș.

Facilități și dotări:

  • Piscină privată: Ideală pentru relaxare în zilele călduroase.
  • Lac artificial: Contribuie la atmosfera liniștită a proprietății.
  • Casă de vară: Echipată cu biliard, vestiar pentru piscină, baie, bar și spălătorie.
  • Foișor și zonă de BBQ: Perfecte pentru petreceri în aer liber.
  • Finisaje de calitate: Parchet, gresie, faianță, ferestre termopan, corpuri de iluminat moderne.
  • Confort termic: Încălzire centrală proprie și aer condiționat.

Această vilă nemobilată oferă oportunitatea de a fi personalizată după preferințele chiriașului, fiind potrivită atât pentru rezidență, cât și pentru birou. Amplasată într-o zonă liniștită, proprietatea asigură intimitate și confort, având în același timp acces facil la facilități urbane.

Pentru mai multe detalii sau pentru a programa o vizionare, vă rugăm să contactați BLISS Imobiliare.

Detalii proprietate
Stare Finalizat
Nr. camere 6
Suprafață utilă 549 m² (12 EUR / m²)
Suprafață construită 644 m² (10 EUR / m²)
Nr. dormitoare 4
Nr. bucătării 1
Nr. băi 4
Tipul clădirii Vila
An construcție 2004
Dispunere P+1+M
Nr. balcoane 3
Gradină Privată 1.925 m²
Total teren 2.250 m²
Amprenta la sol 325 m²
Parcare înăuntru 1
Parcare afară 6
Facilități
Bucătărie echipată
Nemobilat
Încălzire centrală proprie
Potrivit pentru birou
Aer condiționat
Piscină

REALTOR®️ | SRS®️ | PSA®️

BLISS Imobiliare - Imobiliare cu pasiune din 2006!

BLISS Imobiliare este activă în industria imobiliară din România inca din anul 2006. De atunci am dobândit o reputație excelentă gratie standardelor noastre profesionale înalte și a angajamentului nostru față de clienți.

Compania și colegii noștri lucrează îndeaproape cu proprietarii și cu toate persoanele care au o nevoie imobiliara, precum și cu investitorii, avand o abordare completa și integrată pentru a satisfacerea clientilor. În calitate de consultant imobiliar profesionist și consacrat în România, am dobândit de-a lungul timpului cunoștințe extinse despre dezvoltarea imobiliară și despre tendințele pietei din România.

Daca nu ai gasit inca ceea ce iti doresti, te rugam contacteaza-ne si revenim cu oferte personalizate in cel mai scurt timp. Colaboram in cadrul unei retele de profesionisti in imobiliare care te va asista sa gasesti proprietatea pe care ti-o doresti.

BLISS Imobiliare este divizia de Imobiliare din cadrul SC Management Services BLISS SRL

Cod Fiscal RO18268740 | J09/11/09.01.2006

Vă rugăm să citiți Termenii și Condițiile pentru colaborarea cu BLISS Imobiliare și pentru utilizarea acestui site web.
Vila Spatioasa 6 Camere, Piscina Privata | Bliss Imobiliare contact Violetta Tudorache
Violetta Tudorache
Sună-ne Similare