For rent Office space Sema Parc OB152, Semanatoarea, Bucharest

1,955 EUR +VAT / month
ID: 143287
20 February 2026 143287
Pricing information
  • 1,955 EUR - Block
  • 60 EUR - Above ground parking
  • *PLUS VAT
Description

Class B office space with flexible layout

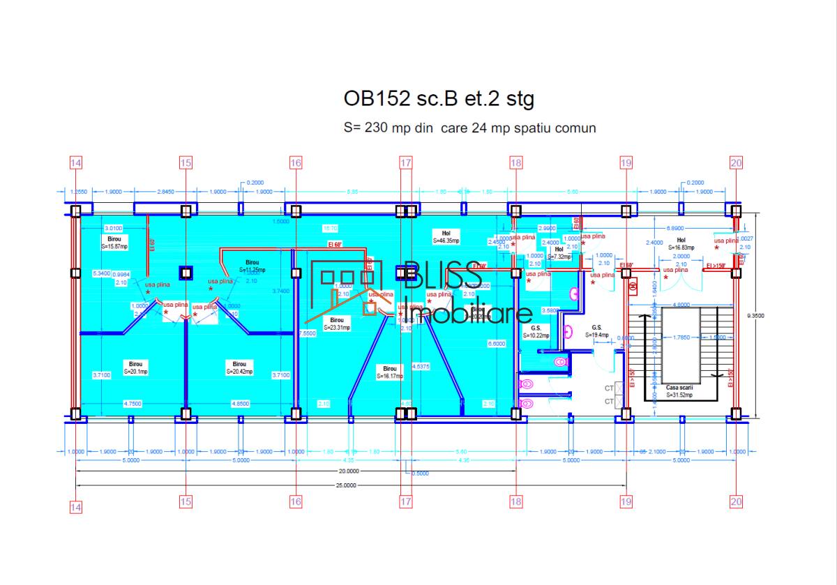
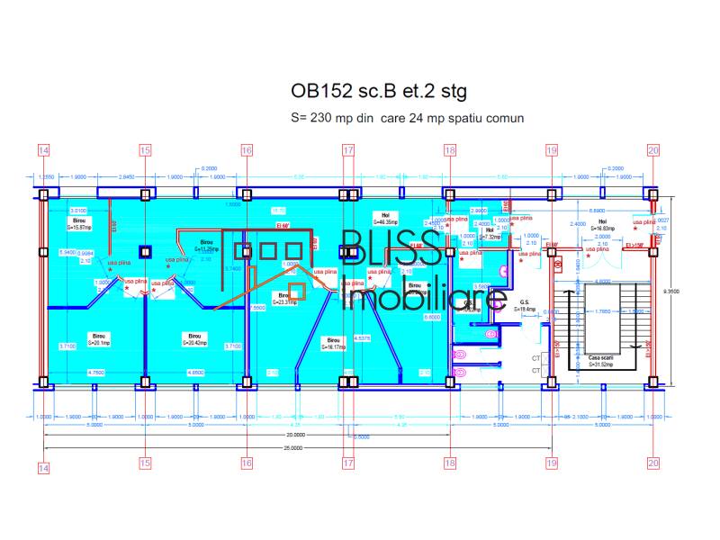
Sema Parc – OB152, 2nd Floor, 230 sqm

Strategic location in western Bucharest

Modern office space in a landmark Class B building

On the 2nd floor of OB152 Building within the Sema Parc complex, a 230 sqm office unit is now available, designed to meet the needs of companies looking for a professional, adaptable, and easily accessible workspace.

The office provides a flexible layout, allowing for both open-plan and partitioned configurations, depending on team structure and working style. Abundant natural light and high-quality finishes create a pleasant and productive working environment.

Features and specifications

  • 230 sqm on the 2nd floor of OB152
  • Immediately available
  • Raised floors for cabling and IT infrastructure
  • Suspended ceilings with integrated LED lighting
  • 4-pipe HVAC system, with zoned climate control
  • Curtain wall façade for optimal daylight
  • 24/7 secure access and on-site security
  • High-speed elevators and modern common areas
  • Building Management System (BMS) for efficiency and monitoring

Benefits for companies

  • Modern and representative Class B office space
  • Fully customizable layout – open space or private offices
  • Access to common areas, restaurants, cafés, and green spaces within the complex
  • Professional setting with optimized operational costs

Location and accessibility

OB152 is located in Sema Parc, one of Bucharest’s largest business hubs, in the central-west area of the city.

  • Petrache Poenaru metro station – only 3 minutes walking
  • Direct connections to Splaiul Independenței, Iuliu Maniu Blvd., and Basarab Bridge
  • Excellent public transport: metro, tram, bus
  • Fast access to downtown and major office hubs in the north (Victoriei, Floreasca, Pipera)

The 230 sqm office on the 2nd floor of OB152 is an excellent opportunity for companies seeking a modern, functional, and strategically located workspace.

Property details
State Finished
Constructed surface 230 m² (9 EUR / m²)
Building type Block
Year built 2003
Building renovated 2016
Config P+2
Common service charges 460.00 EUR
Amenities
Not furnished
Building heating
Only for office
Air conditioning

REALTOR®️ | SRS®️ | PSA®️

BLISS Imobiliare - Real Estate passion since 2006!

Embark on a journey with BLISS Imobiliare, a trailblazer in the Romanian real estate scene since 2006. Our unwavering commitment to excellence and high professional standards has earned us an outstanding reputation in the industry.

At BLISS Imobiliare, our dedicated team collaborates closely with both real estate buyers (and tenants) and sellers, specializing in single-unit transactions. Whether you're seeking your dream home or looking to sell a property, our personalized approach ensures a smooth and satisfying experience.

For investors eyeing development or speculative opportunities, BLISS Imobiliare is your strategic partner. Together, we can build portfolios of income-generating assets, maximizing potential in the ever-evolving real estate landscape.

Discover the BLISS difference as we apply a comprehensive and integrated approach to meet diverse real estate needs. As a seasoned boutique real estate consultant in Romania, our operation since 2006 has equipped us with extensive knowledge of real estate development and trends, ensuring that your property journey is guided by expertise and insight.

If this propety is not exactly what you are looking for contact us and we will source what you are looking for. We collaborate within an extensive network of real estate professionals who will assist in finding you the property you want!

BLISS Imobiliare is the real estate division of:

Management Services BLISS SRL

Fiscal code RO18268740 | J23/6511/2023

Please read the Terms and Conditions for collaborating with BLISS Imobiliare and for using this website.
Office Space, Bucharest | Bliss Imobiliare contact Violetta Tudorache
Violetta Tudorache
Call us