For rent Office space Virtuții Business Center, Virtutii, Bucharest

391 EUR +VAT / month
ID: 121703
17 October 2025 121703
Pricing information
  • 391 EUR - Block
  • 40 EUR - Above ground parking
  • 80 EUR - Underground parking -1
  • *PLUS VAT
Description

Contemporary office building with excellent access in West Bucharest

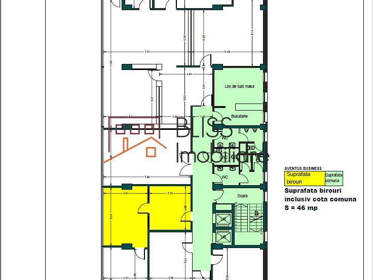
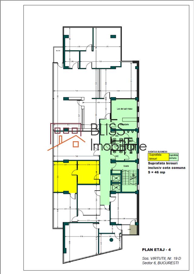
Virtuții Business Center – 4th Floor, 46 sqm Modern Office

Compact, flexible and energy-efficient workspace for growing companies

The Virtutii 19D building is a strategic location, situated on Soseaua Virtutii, just 900 meters from the Lujerului Passage, in the immediate vicinity of the intersection of Soseaua Virtutii and Bulevardul Iuliu Maniu and 1.3 km from Piata Crângasi.

Located near the Morii Lake and the new Ciurel overpass, the building benefits from a diversified and dynamic urban environment.

The surrounding area has developed considerably over the last 10-15 years, offering a wide range of amenities, including a major shopping centre just 10-15 minutes' walk away, including Cora Lujerului, Plaza Romania, Piata Crângasi, supermarkets and discounters.

Easy access by car is provided from Soseaua Virtutii, in the direction from Piata Crângasi to Lujerului Passage, via a fast artery with 2 lanes in each direction and a central tram line. The road provides a direct connection with Bulevardul Iuliu Maniu, Bulevardul Timisoara and Calea Crangasi - Grant Bridge, facilitating quick access to the west, centre and north of the capital.

Public transport is easily accessible, with two metro stations within a 10-minute walk from the building: Petrache Poenaru - Semanatoarea (Magistrala M1) and Lujerului (Magistrala M3). In addition, the easy metro line 41 and bus lines are available within a 2-minute walk from the building.

The Virtuții 19D building spans basement, ground floor and 7 floors, with a total leasable area of 4,000 m2, with 517 m2 on each floor. It offers both underground and outdoor parking, providing a convenient and friendly environment for employees and visitors.

Property details
State Finished
Constructed surface 46 m² (9 EUR / m²)
Bathrooms no. 1
Building type Block
Year built 2009
Config 1S+P+7
Elevator Yes
Common service charges 138.00 EUR
Amenities
Not furnished
Only for office
Air conditioning

REALTOR®️ | SRS®️ | PSA®️

BLISS Imobiliare - Real Estate passion since 2006!

Embark on a journey with BLISS Imobiliare, a trailblazer in the Romanian real estate scene since 2006. Our unwavering commitment to excellence and high professional standards has earned us an outstanding reputation in the industry.

At BLISS Imobiliare, our dedicated team collaborates closely with both real estate buyers (and tenants) and sellers, specializing in single-unit transactions. Whether you're seeking your dream home or looking to sell a property, our personalized approach ensures a smooth and satisfying experience.

For investors eyeing development or speculative opportunities, BLISS Imobiliare is your strategic partner. Together, we can build portfolios of income-generating assets, maximizing potential in the ever-evolving real estate landscape.

Discover the BLISS difference as we apply a comprehensive and integrated approach to meet diverse real estate needs. As a seasoned boutique real estate consultant in Romania, our operation since 2006 has equipped us with extensive knowledge of real estate development and trends, ensuring that your property journey is guided by expertise and insight.

If this propety is not exactly what you are looking for contact us and we will source what you are looking for. We collaborate within an extensive network of real estate professionals who will assist in finding you the property you want!

BLISS Imobiliare is the real estate division of:

Management Services BLISS SRL

Fiscal code RO18268740 | J23/6511/2023

Please read the Terms and Conditions for collaborating with BLISS Imobiliare and for using this website.
Office Space, Bucharest | Bliss Imobiliare contact Violetta Tudorache
Violetta Tudorache
Call us