For rent Office space Sema Parc OB152, Semanatoarea, Bucharest
Semanatoarea
Pricing information
- 1,955 EUR - Block
- 60 EUR - Above ground parking
- *PLUS VAT
Description
Class B office space with flexible layout
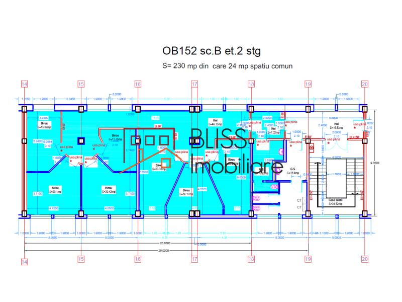
Sema Parc – OB152, 2nd Floor, 230 sqm
Strategic location in western Bucharest
Modern office space in a landmark Class B building
On the 2nd floor of OB152 Building within the Sema Parc complex, a 230 sqm office unit is now available, designed to meet the needs of companies looking for a professional, adaptable, and easily accessible workspace.
The office provides a flexible layout, allowing for both open-plan and partitioned configurations, depending on team structure and working style. Abundant natural light and high-quality finishes create a pleasant and productive working environment.
Features and specifications
- 230 sqm on the 2nd floor of OB152
- Immediately available
- Raised floors for cabling and IT infrastructure
- Suspended ceilings with integrated LED lighting
- 4-pipe HVAC system, with zoned climate control
- Curtain wall façade for optimal daylight
- 24/7 secure access and on-site security
- High-speed elevators and modern common areas
- Building Management System (BMS) for efficiency and monitoring
Benefits for companies
- Modern and representative Class B office space
- Fully customizable layout – open space or private offices
- Access to common areas, restaurants, cafés, and green spaces within the complex
- Professional setting with optimized operational costs
Location and accessibility
OB152 is located in Sema Parc, one of Bucharest’s largest business hubs, in the central-west area of the city.
- Petrache Poenaru metro station – only 3 minutes walking
- Direct connections to Splaiul Independenței, Iuliu Maniu Blvd., and Basarab Bridge
- Excellent public transport: metro, tram, bus
- Fast access to downtown and major office hubs in the north (Victoriei, Floreasca, Pipera)
The 230 sqm office on the 2nd floor of OB152 is an excellent opportunity for companies seeking a modern, functional, and strategically located workspace.
| Property details | |
|---|---|
| State | Finished |
| Constructed surface | 230 m² (9 EUR / m²) |
| Building type | Block |
| Year built | 2003 |
| Building renovated | 2016 |
| Config | P+2 |
| Common service charges | 460.00 EUR |
REALTOR®️ | SRS®️ | PSA®️
BLISS Imobiliare - Real Estate passion since 2006!
Embark on a journey with BLISS Imobiliare, a trailblazer in the Romanian real estate scene since 2006. Our unwavering commitment to excellence and high professional standards has earned us an outstanding reputation in the industry.
At BLISS Imobiliare, our dedicated team collaborates closely with both real estate buyers (and tenants) and sellers, specializing in single-unit transactions. Whether you're seeking your dream home or looking to sell a property, our personalized approach ensures a smooth and satisfying experience.
For investors eyeing development or speculative opportunities, BLISS Imobiliare is your strategic partner. Together, we can build portfolios of income-generating assets, maximizing potential in the ever-evolving real estate landscape.
Discover the BLISS difference as we apply a comprehensive and integrated approach to meet diverse real estate needs. As a seasoned boutique real estate consultant in Romania, our operation since 2006 has equipped us with extensive knowledge of real estate development and trends, ensuring that your property journey is guided by expertise and insight.
If this propety is not exactly what you are looking for contact us and we will source what you are looking for. We collaborate within an extensive network of real estate professionals who will assist in finding you the property you want!
BLISS Imobiliare is the real estate division of:
Management Services BLISS SRL
Fiscal code RO18268740 | J23/6511/2023