De inchiriat Spațiu de birouri Virtuții Business Center, Virtutii, Bucuresti

1.479 EUR +TVA / lună
ID: 117336
17 October 2025 117336
Informații despre prețuri
  • 1.479 EUR - Bloc
  • 40 EUR - Parcare supraterană
  • 80 EUR - Parcare subterană la -1
  • *PLUS TVA
Descriere

Clădire modernă, cu acces excelent în vestul Bucureștiului

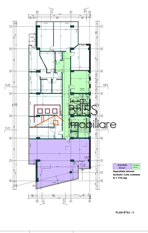
Spatiu de birouri cu o suprafata de 174 mp, situat la etajul 5 in Virtutii Business Center.

Spațiu generos, compartimentabil, ideal pentru echipe dinamice

Clădirea Virtuții 19D reprezintă o locație strategică, situată pe Soseaua Virtutii, la doar 900 de metri de Pasajul Lujerului, în imediata vecinătate a intersecției Soselei Virtutii cu Bulevardul Iuliu Maniu și la 1,3 km de Piața Crângasi.

Localizată în proximitatea Lacului Morii și a noului pasaj suprateran Ciurel, clădirea beneficiază de un mediu urban diversificat și dinamic.

Zona înconjurătoare s-a dezvoltat considerabil în ultimii 10-15 ani, oferind o gamă variată de facilități, inclusiv un important centru comercial la doar 10-15 minute de mers pe jos, care include Cora Lujerului, Plaza Romania, Piața Crângasi, supermarketuri și discountere.

Accesul facil cu automobilul este asigurat din Soseaua Virtutii, pe direcția de la Piața Crângasi către Pasajul Lujerului, printr-o arteră rapidă cu 2 benzi de circulație pe sens și o linie de tramvai centrală. Soseaua oferă o conexiune directă cu Bulevardul Iuliu Maniu, Bulevardul Timisoara și Calea Crangasi – Podul Grant, facilitând accesul rapid către vestul, centrul și nordul capitalei.

Transportul public este ușor accesibil, având două stații de metrou la doar 10 minute de mers pe jos de clădire: Petrache Poenaru – Semanatoarea (Magistrala M1) și Lujerului (Magistrala M3). În plus, linia de metrou ușor 41 și linii de autobuze sunt disponibile la doar 2 minute de mers pe jos de clădire.

Clădirea Virtuții 19D se întinde pe subsol, parter și 7 etaje, având o suprafață închiriabilă totală de 4.000 m2, cu 517 m2 pe fiecare etaj. Oferă locuri de parcare atât în subteran, cât și în exterior, asigurând un mediu convenabil și prietenos pentru angajați și vizitatori.

Detalii proprietate
Stare Finalizat
Suprafață construită 174 m² (9 EUR / m²)
Tipul clădirii Bloc
An construcție 2009
Dispunere 1S+P+7
Lift Da
Întreținere spații comune 522.00 EUR
Facilități
Nemobilat
Doar pentru birouri
Aer condiționat

REALTOR®️ | SRS®️ | PSA®️

BLISS Imobiliare - Imobiliare cu pasiune din 2006!

BLISS Imobiliare este activă în industria imobiliară din România inca din anul 2006. De atunci am dobândit o reputație excelentă gratie standardelor noastre profesionale înalte și a angajamentului nostru față de clienți.

Compania și colegii noștri lucrează îndeaproape cu proprietarii și cu toate persoanele care au o nevoie imobiliara, precum și cu investitorii, avand o abordare completa și integrată pentru a satisfacerea clientilor. În calitate de consultant imobiliar profesionist și consacrat în România, am dobândit de-a lungul timpului cunoștințe extinse despre dezvoltarea imobiliară și despre tendințele pietei din România.

Daca nu ai gasit inca ceea ce iti doresti, te rugam contacteaza-ne si revenim cu oferte personalizate in cel mai scurt timp. Colaboram in cadrul unei retele de profesionisti in imobiliare care te va asista sa gasesti proprietatea pe care ti-o doresti.

BLISS Imobiliare este divizia de Imobiliare din cadrul SC Management Services BLISS SRL

Cod Fiscal RO18268740 | J09/11/09.01.2006

Vă rugăm să citiți Termenii și Condițiile pentru colaborarea cu BLISS Imobiliare și pentru utilizarea acestui site web.
Spatiu De Birouri | Bliss Imobiliare contact Violetta Tudorache
Violetta Tudorache
Sună-ne