De inchiriat casa moderna la prima inchiriere cu 2 locuri de parcare si curte privata Vlăsiei North1, Balotesti, Bucuresti / Ilfov


ID: 118709
13 May 2024 118709
Ne pare rău, această proprietate
Nu mai este disponibilă


Închide
Descriere

Casa noua, aproape de padure, ideala pentru familii cu copii.

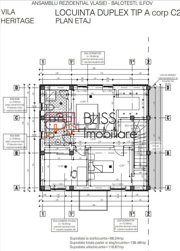
BLISS Imobiliare va prezinta o casa de 4 camere finalizata in 2023, amplasata pe un teren de 236 mp, situata in ansamblul rezidential Vlasiei North One din Balotesti, la doar 20 de minute de condus de nordul Bucurestiului.

Acces facil la aeroportul Otopeni, autostrada A3, DN1, Pipera.

Cu o suprafata utila de 117 mp, proprietatea este impartita eficient si inteligent pentru a maximiza utilizarea spatiului. Toate nevoile familiei dumneavoastră sunt satisfăcute.

Parterul este format dintr-un living foarte spatios, cu o bucatarie open space, si o baie. La etaj regasim 3 dormitoare, fiecare cu dressing propriu, o baie pe hol, iar dormitorul matrimonial are baie proprie.

În exterior veți găsi o curte privată spațioasă, care poate fi amenajată ca un loc potrivit pentru momentele de relaxare în aer liber, impreuna cu familia si prietenii.

Din punct de vedere al confortului termic, proprietatea este dotata atat cu centrala termica cat si cu aer conditionat in fiecare camera. Casa se poate oferi atat complet mobilata si utilata, cat si nemobilata, in functie de preferinte.

Complexul Vlasiei North One are o locatie excelenta, fiind situat la doar cativa kilometri de Bucuresti. Acest lucru face ca locația să fie atractivă pentru cei care lucrează în București sau pentru familiile care doresc să aibă acces ușor la servicii, școli și activități culturale, dar în același timp să scape de haosul urban. Este situat în apropierea pădurii, ceea ce oferă o oportunitate foarte bună pentru activități în aer liber precum drumeții sau ciclism.

Un mare avantaj al acestei locații este că se află la 10 minute cu mașina de Therme, cel mai mare centru de wellness și relaxare din Europa, așa că această vilă este alegerea potrivită pentru cei care prețuiesc un stil de viață sănătos și pe bunăstarea lor. 

Detalii proprietate
Stare Finalizat
Nr. camere 4
Suprafață utilă 117 m² (8 EUR / m²)
Suprafață construită 136 m² (7 EUR / m²)
Nr. dormitoare 3
Nr. bucătării 1
Nr. băi 2
Nr. toalete 1
Tipul clădirii Vila
An construcție 2023
Dispunere P+1
Gradină Privată 168 m²
Total teren 236 m²
Amprenta la sol 68 m²
Parcare afară 2
Facilități
Bucătărie echipată
Mașină de spălat vase
Nemobilat
Încălzire centrală proprie
Aer condiționat

REALTOR®️ | SRS®️ | PSA®️

BLISS Imobiliare - Imobiliare cu pasiune din 2006!

BLISS Imobiliare este activă în industria imobiliară din România inca din anul 2006. De atunci am dobândit o reputație excelentă gratie standardelor noastre profesionale înalte și a angajamentului nostru față de clienți.

Compania și colegii noștri lucrează îndeaproape cu proprietarii și cu toate persoanele care au o nevoie imobiliara, precum și cu investitorii, avand o abordare completa și integrată pentru a satisfacerea clientilor. În calitate de consultant imobiliar profesionist și consacrat în România, am dobândit de-a lungul timpului cunoștințe extinse despre dezvoltarea imobiliară și despre tendințele pietei din România.

Daca nu ai gasit inca ceea ce iti doresti, te rugam contacteaza-ne si revenim cu oferte personalizate in cel mai scurt timp. Colaboram in cadrul unei retele de profesionisti in imobiliare care te va asista sa gasesti proprietatea pe care ti-o doresti.

BLISS Imobiliare este divizia de Imobiliare din cadrul SC Management Services BLISS SRL

Cod Fiscal RO18268740 | J09/11/09.01.2006

Vă rugăm să citiți Termenii și Condițiile pentru colaborarea cu BLISS Imobiliare și pentru utilizarea acestui site web.
Casa Moderna La Prima Inchiriere Balotesti | Bliss Imobiliare contact Violetta Tudorache
Violetta Tudorache
Sună-ne