De vanzare vila 8 camere Complexul Rezidențial Portofino, Iancu Nicolae, Bucuresti / Ilfov
Iancu Nicolae | Pipera
În colaborare cu o altă agenție
Descriere
Vila Superba de Vanzare P+1E+M situata intr-un complex cu doar 5 unitati cu acces din Bd. Iancu Nicolae, Voluntari
O vilă modernă și spațioasă, situată în zona exclusivistă Iancu Nicolae, complet renovată acum 3 ani, ideală pentru o familie care își dorește un cămin confortabil și elegant.
Caracteristici generale:
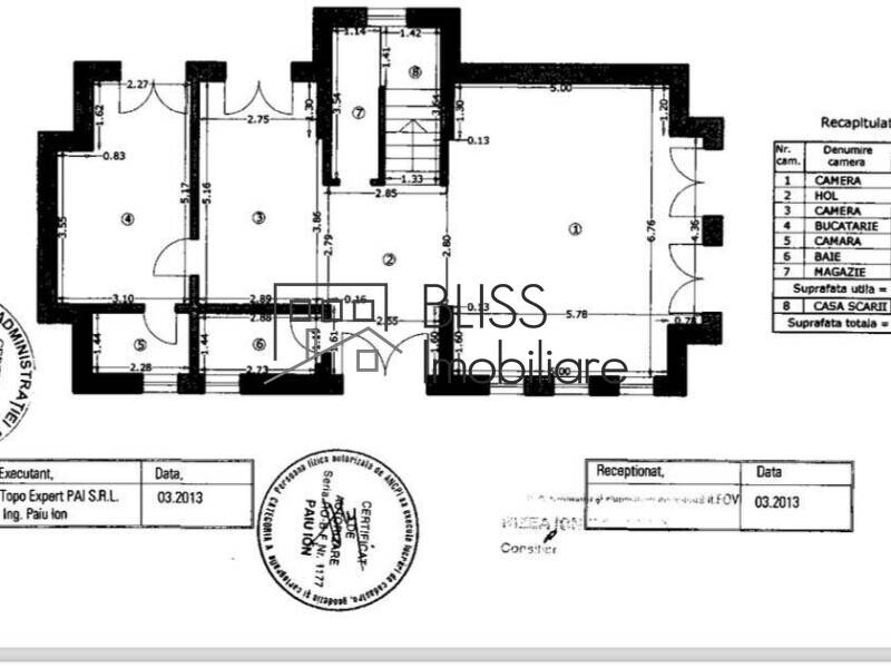
- *Suprafață utilă:* 260 mp
- *Grădină privată:* 400 mp, amenajata cu peisagist, cu sistem de irigare, sperfectă pentru relaxare
- *Garaj semi-închis:* capacitate pentru 3-4 mașini
- *Panouri solare:* independență energetică
Compartimentare:
- Parter:
- Living spațios și luminos
- Bucătărie separată, modernă, cu insulă centrală
- Cameră tehnică
- Toaletă de serviciu
- Terasă încălzită, acces direct din bucătărie, perfectă pentru a savura cafeaua dimineața sau serile de vară.
- *Etaj 1:*
- 3 dormitoare luminoase și primitoare
- 2 băi complet utilate
- *Etaj 2:*
- Open space împărțit în birou și dormitor, ideal pentru activități profesionale sau hobby-uri
- Sauna pentru momentele de relaxare
- Toaletă
*Curtea:* complet închisă, asigură intimitate și siguranță, fiind perfectă pentru activități în aer liber sau pentru copii.
| Detalii proprietate | |
|---|---|
| Stare | Finalizat |
| Nr. camere | 8 |
| Suprafață utilă | 260 m² (4.615 EUR / m²) |
| Nr. dormitoare | 4 |
| Nr. bucătării | 1 |
| Nr. băi | 4 |
| Nr. toalete | 1 |
| Tipul clădirii | Vila |
| An construcție | 2002 |
| Dispunere | P+1 |
| Nr. balcoane | 3 |
| Gradină | Privată 400 m² |
| Total teren | 1.000 m² |
| Amprenta la sol | 260 m² |
| Parcare înăuntru | 4 |
REALTOR®️ | SRS®️ | PSA®️
BLISS Imobiliare - Imobiliare cu pasiune din 2006!
BLISS Imobiliare este activă în industria imobiliară din România inca din anul 2006. De atunci am dobândit o reputație excelentă gratie standardelor noastre profesionale înalte și a angajamentului nostru față de clienți.
Compania și colegii noștri lucrează îndeaproape cu proprietarii și cu toate persoanele care au o nevoie imobiliara, precum și cu investitorii, avand o abordare completa și integrată pentru a satisfacerea clientilor. În calitate de consultant imobiliar profesionist și consacrat în România, am dobândit de-a lungul timpului cunoștințe extinse despre dezvoltarea imobiliară și despre tendințele pietei din România.
Daca nu ai gasit inca ceea ce iti doresti, te rugam contacteaza-ne si revenim cu oferte personalizate in cel mai scurt timp. Colaboram in cadrul unei retele de profesionisti in imobiliare care te va asista sa gasesti proprietatea pe care ti-o doresti.
BLISS Imobiliare este divizia de Imobiliare din cadrul SC Management Services BLISS SRL
Cod Fiscal RO18268740 | J09/11/09.01.2006
Violetta Tudorache
În colaborare cu o altă agenție
Oferte Similare
ID: 80634
- 19 December 2025
De vanzare vila 7 camere
Baneasa Residential Park (Butterfly), Iancu Nicolae, Bucuresti / Ilfov
- 414 m²
- Construit 2007
ID: 120472
- 19 December 2025
De vanzare vila 6 camere
Baneasa Residential Park (Butterfly), Iancu Nicolae British School Bucharest, Bucuresti / Ilfov
- 350 m²
- Construit 2005
ID: 79889
- 19 December 2025
De vanzare vila 7 camere
Alfa Town (Impact), Iancu Nicolae British School Bucharest, Bucuresti / Ilfov
- 408 m²
- Renovat 2019