De inchiriat spațiu de birouri Matei Millo Office Forte Partners, Calea Victoriei Novotel, Bucuresti


ID: 105066
10 March 2022 105066
Ne pare rău, această proprietate
Nu mai este disponibilă


Închide
Informații despre prețuri
  • 6.496 EUR - Bloc
  • 120 EUR - Parcare subterană la -1
  • *PLUS TVA
Descriere

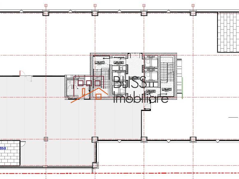
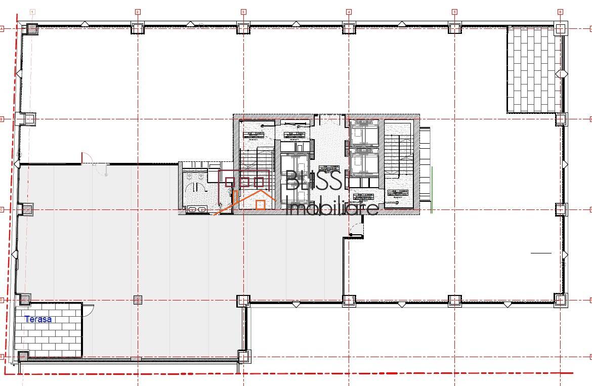
Spatiu de birou, 339,71 mp + 22,80 mp terasa, situat la etajul 2 in Matei Millo Office, Calea Victoriei.

Matei Millo Office este amplasat in zona ultracentrala a Bucurestiului, zona Caii Victoria, langa hotelul Novotel si Palatul Telefoanelor. Proiectul este desfasurat intre strazile Matei Millo si Ion Campineanu.

Proiectul beneficiaza de un amplasament exceptional, la doar 75 de metri de Calea Victoriei si 300 de metri de Bulevardul Regina Elisabeta, respectiv 600 de metri de Piata Universitatii. Vecinatatile cladirii includ functiuni variate: hoteluri de 4-5 stele, teatre, birouri si administratie, spatii comerciale etc.

Accesul cu automobilul este facil, fiind realizat pe Strada Ion Campineanu si Strada Matei Millo, ambele strazi cu dublu sens conectate cu Calea Victoriei si restul infrastructurii ultracentrale. Transportul public este excelent dezvoltat, incluzand in distanta pietonala (3-5 minute): metrou (statia Universitate), linii de autobuz si troleibuz.

Matei Millo Office este o cladire de birouri premium de clasa A, cu certificare BREEAM Outstanding, finalizata in 2021.

Cladirea este desfasurata pe 3 niveluri subterane, parter, mezanin si 9 etaje. Suprafata inchiriabila totala este de 9.657 m2, cu aprox. 1.000 m2 pe etaj. Parcarea este amplasata subteran si include 131 locuri.


Detalii proprietate
Stare Gri
Suprafață construită 363 m² (18 EUR / m²)
Tipul clădirii Bloc
An construcție 2021
Dispunere 3S+P+9
Lift Da
De la dezvoltator Da
Facilități
Nemobilat
Încălzire de la clădire
Doar pentru birouri
Aer condiționat

REALTOR®️ | SRS®️ | PSA®️

BLISS Imobiliare - Imobiliare cu pasiune din 2006!

BLISS Imobiliare este activă în industria imobiliară din România inca din anul 2006. De atunci am dobândit o reputație excelentă gratie standardelor noastre profesionale înalte și a angajamentului nostru față de clienți.

Compania și colegii noștri lucrează îndeaproape cu proprietarii și cu toate persoanele care au o nevoie imobiliara, precum și cu investitorii, avand o abordare completa și integrată pentru a satisfacerea clientilor. În calitate de consultant imobiliar profesionist și consacrat în România, am dobândit de-a lungul timpului cunoștințe extinse despre dezvoltarea imobiliară și despre tendințele pietei din România.

Daca nu ai gasit inca ceea ce iti doresti, te rugam contacteaza-ne si revenim cu oferte personalizate in cel mai scurt timp. Colaboram in cadrul unei retele de profesionisti in imobiliare care te va asista sa gasesti proprietatea pe care ti-o doresti.

BLISS Imobiliare este divizia de Imobiliare din cadrul SC Management Services BLISS SRL

Cod Fiscal RO18268740 | J09/11/09.01.2006

Vă rugăm să citiți Termenii și Condițiile pentru colaborarea cu BLISS Imobiliare și pentru utilizarea acestui site web.
spațiu de birouri de Inchiriat KM 0 | Ultracentral - ID:105066 | Bliss Imobiliare contact Violetta Tudorache
Violetta Tudorache
Sună-ne